115
1
0
Planlegging av belysning i ny bolig
25
0
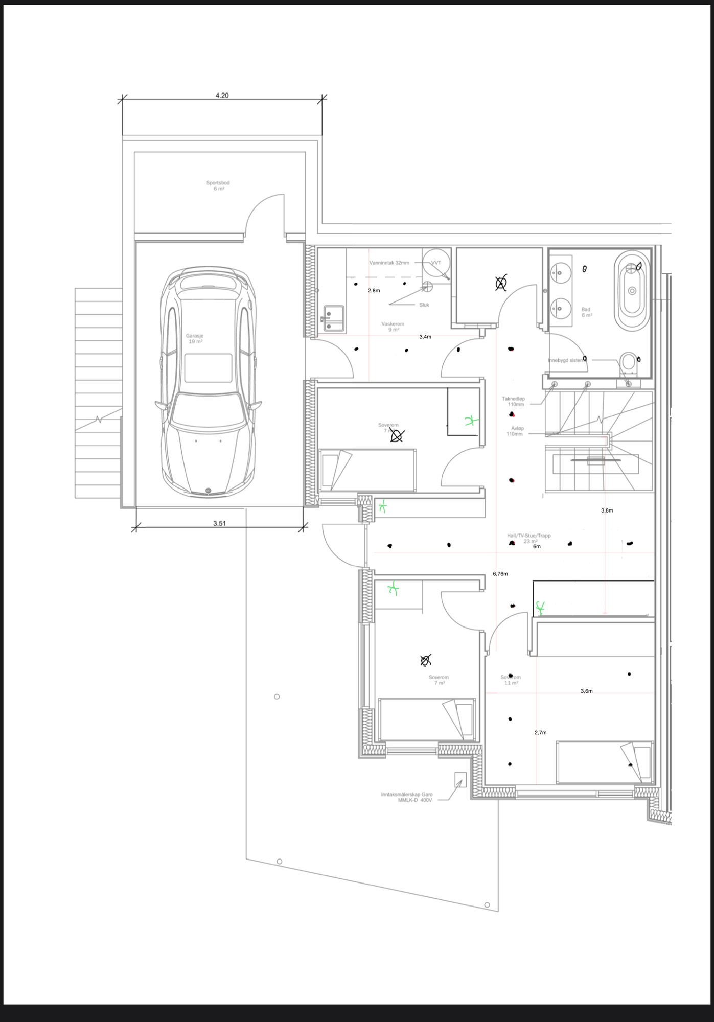
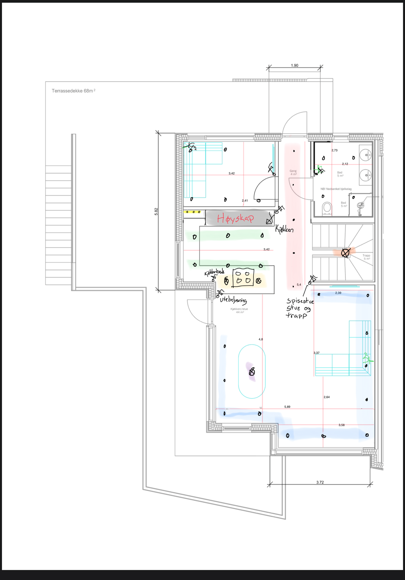
Hei!
Vi bygger ny bolig og har nå kommet til punktet hvor vi må bestemme oss for plassering av lampepunkt og downlights.
Vet ikke helt hvilken modell det blir enda, men tipper vi lander på en av standard modellene til SG.
Hva synes dere om plasseringen av lys hittil?
Er like redd for overkill som det å bruke for lite, som for eksempel om det blir nok i trappa med bare et lyspunkt i trapp.
På kjøkkenet er jeg litt usikker på hvordan jeg skal løse det med belysning over kjøkkenbenk og platetopp, da vi ikke skal ha overhengende ventilator. Tror det kan bli litt dårlig arbeidslys med bare downlights fra taket (derav to lampepunkt).

Vi bygger ny bolig og har nå kommet til punktet hvor vi må bestemme oss for plassering av lampepunkt og downlights.
Vet ikke helt hvilken modell det blir enda, men tipper vi lander på en av standard modellene til SG.
Hva synes dere om plasseringen av lys hittil?
Er like redd for overkill som det å bruke for lite, som for eksempel om det blir nok i trappa med bare et lyspunkt i trapp.
På kjøkkenet er jeg litt usikker på hvordan jeg skal løse det med belysning over kjøkkenbenk og platetopp, da vi ikke skal ha overhengende ventilator. Tror det kan bli litt dårlig arbeidslys med bare downlights fra taket (derav to lampepunkt).


Chrisbl
(trådstarter)
25
0
