219    1    2  

Prosjekt nytt herskapelig hovedhus på gård

 1     1
Hei

Vi har vært så heldige å kunne overta en gård som driver i dag med kornproduksjon. Gården ligger sentralt på øvre romeriket med gå avstand til alle forskjellige fasiliteter i byen. 

De første skissene har kommet, og det hadde vært fint om andre mer erfarne «husbyggere» kunne delt sine erfaringer med oss «nybegynnere».

Kort om skissene:

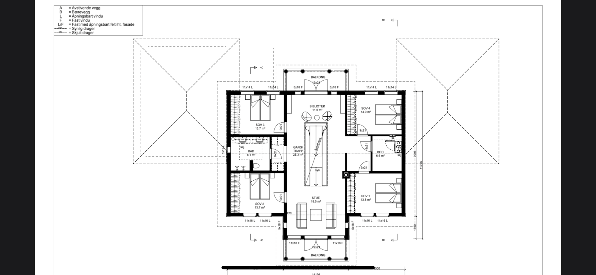
Vi ønsker oss et herskapelig preg på huset. Samboer var veldig ivrig på en massiv trapp når man går inn i huset, men vi ser at denne tar mye plass og vil mest sannsynlig be om en trapp langs en av veggene. Det blir en grov trapp, men i noe mindre skala. 

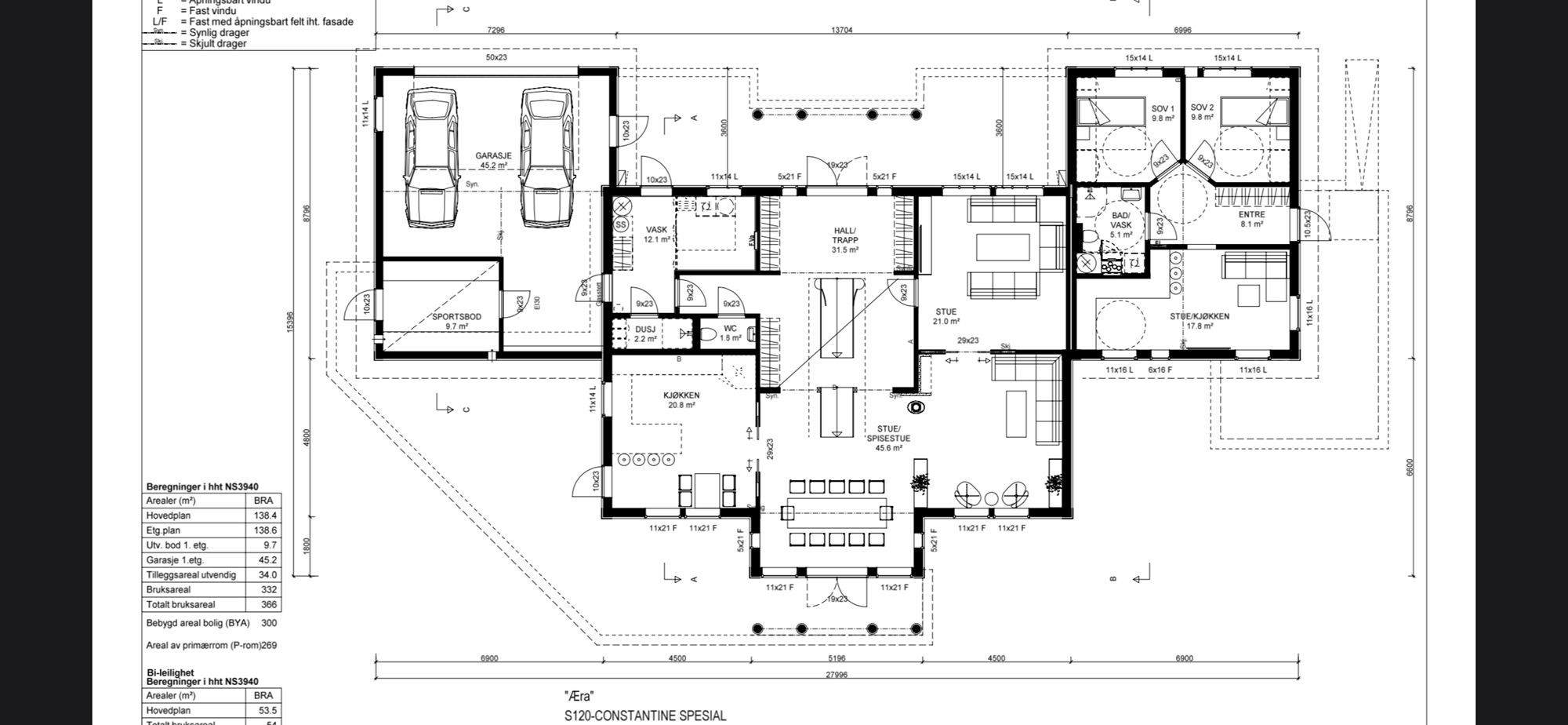
Det er ønske om et stort vaskerom med muligheter for dusj. Det blir egen inngang utenfra. Ønsker å innrede med mye skapplass. Det skal legges til rette for sjakt til skittentøy fra 2.etg. 

Det er behov for stort kjøkken med kjøkkenøy og noen enkle spiseplasser når kun oss 4 er samlet. Har stor familie så vi legger til rette for stor spisestue

Litt usikre på de stuene som er tegnet inn nede da vi i hovedsak ønsker å kun ha tv oppe.  

I 2.etg blir det 3 soverom til oss og 1 gjesterom. Har veldig mye lagringsplass i låven og det er grunnen for mindre bodplass. Det var tanker om kjeller, men pga høyt grunnvann utgikk det og vi vil se på muligheter for loft. 

Elles blir det utleie og garasje «koblet» på huset som egne moduler. 

Setter pris på tilbakemeldinger på skisse, forslag, og andre tips man kan ta med seg på veien. Også veldig aktuelt å kunne se andre sine løsninger på blant annet gang, vaskerom og kjøkken. 

Prosjekt nytt herskapelig hovedhus på gård - 17AD46FA-C21C-492E-94ED-563F3D9DA393.png - Gårdskaren 
Prosjekt nytt herskapelig hovedhus på gård - C2AE9EED-AD5D-4A31-B1B5-51C2B3B392EA.png - Gårdskaren
Prosjekt nytt herskapelig hovedhus på gård - 9D80DE86-6E61-4C12-AF5E-905BC9BBF48C.png - Gårdskaren

   #1
 143     0
Tror at dere kommer til å mislike ytterdør foran spisebordet, det blir enten å ikke ha bord der, eller ikke bruke døra.

Fire soverom som deler ett bad kan bli hektisk på morgenen. Ingen rullestolsirkel nede på bad.

Tenk på at familien beveger seg veldig klumpvis når barna er små, og mer oppdelt når de blir eldre. Ikke lås dere til rom, tenk funksjon. Kommer dere til å gå opp for å se på tv på kvelden? Blir det bråkete å være oppe etter leggetid?

Kanskje ha et dusjkabinett på vaskerommet i stedet for eget dusjrom?

Tenk på avstand fra hvor skoene kommer av til der dere går opp trappa. Hvis det går er det praktisk å ikke dra masse sand rundt i huset når dere går opp og ned.

Vi bygget etter egne tanker med Hellvik Hus, og skulle nok valgt en arkitekt og valgt fagarbeidere selv for å ha tettere oppfølging, vi kom dårlig ut av å ikke kunne ha dialog og veiledning.